DESIGN OF THE BUILDING
Our architect friend from Vietnam, Trung Pham, designed the Green Building. The school will be constructed using earthen bags, adobe bricks, and recycled materials. A notable feature is the 'Green Roof' for passive cooling and 'Solar Panels' for electricity.
The building's total area is 160 m², with 100 m² indoors. It includes:
Main classroom: 42 m²
Secondary classroom: 48 m², divided into a library and play area
A large roof overhang will provide outdoor play space, with an additional patio and handwashing sink on the west side. The roof, designed by ecological permaculture expert Ben Murray, will enhance cooling and natural ventilation.
Green Roof Structure & Foundations
-

Green Roof Structure
One crucial design consideration for a green roof is its weight, as additional layers are needed to support the soil and vegetation. It's also essential to account for the increased weight during the rainy season when the roof absorbs water. There are different types of green roofs, each with varying weights. Understanding these differences is vital to ensure the structural integrity and longevity of the green roof, providing a sustainable and eco-friendly solution for the building.
-

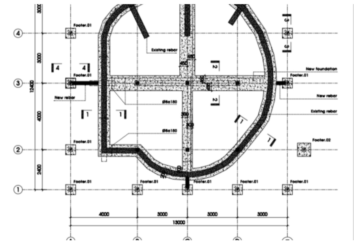
Foundations
We've designed a wider foundation with several poles to hold the structure. A reinforced cross-shaped foundation connects the walls and poles, with additional exterior poles for roof support. The walls will bear some weight, and rebar mesh in the floor foundation ensures stability.
COST ESTIMATION
The estimated cost of the building is 1,350,000 Thai Baht (approximately 38,800 US Dollars). This includes the main structure, green roof, solar energy system, furniture, and educational materials.
Breakdown of Costs:
Phase 1: Foundations & Poles
Labour: 75,000 THB
Materials: 140,000 THB
Phase 2: Walls, Windows & Doors
Labour: 62,000 THB
Materials: 34,000 THB
Phase 3: Roof Structure & Green Roof
Labour: 135,000 THBMaterials: 412,200 THB
Phase 4: Solar Panels & Installation
Materials: 220,000 THB
Labour: 10,000 THB
Phase 5: Finishing & Interior Decorating
Materials: 94,000 THB
Labour: 43,000 THB
Other Costs:
Design, Project Management, Tools, and Unforeseen Costs: 120,000 THB
YOUR DONATION IS VITAL
We rely entirely on donations to move the Eco School Project forward. Your support will help us create a beautiful, sustainable landmark that will inspire similar projects in the region. The environmental and socio-economic benefits include:
Environmental Benefits:
Lower CO2 footprint compared to conventional cement buildings
Use of local earth reduces mining impact
Natural cooling reduces the need for AC and energy consumption
Serving as a model for other eco-school buildings
Socio-Economic Benefits:
Training and employing local villagers as green builders
Supporting the local economy and families
Promoting social cohesion in the village
Raising the profile of the village for future eco-friendly projects
If you have any questions or would like a detailed budget, please contact us. Any surplus funds will be used for landscaping, playground development, and related school projects.